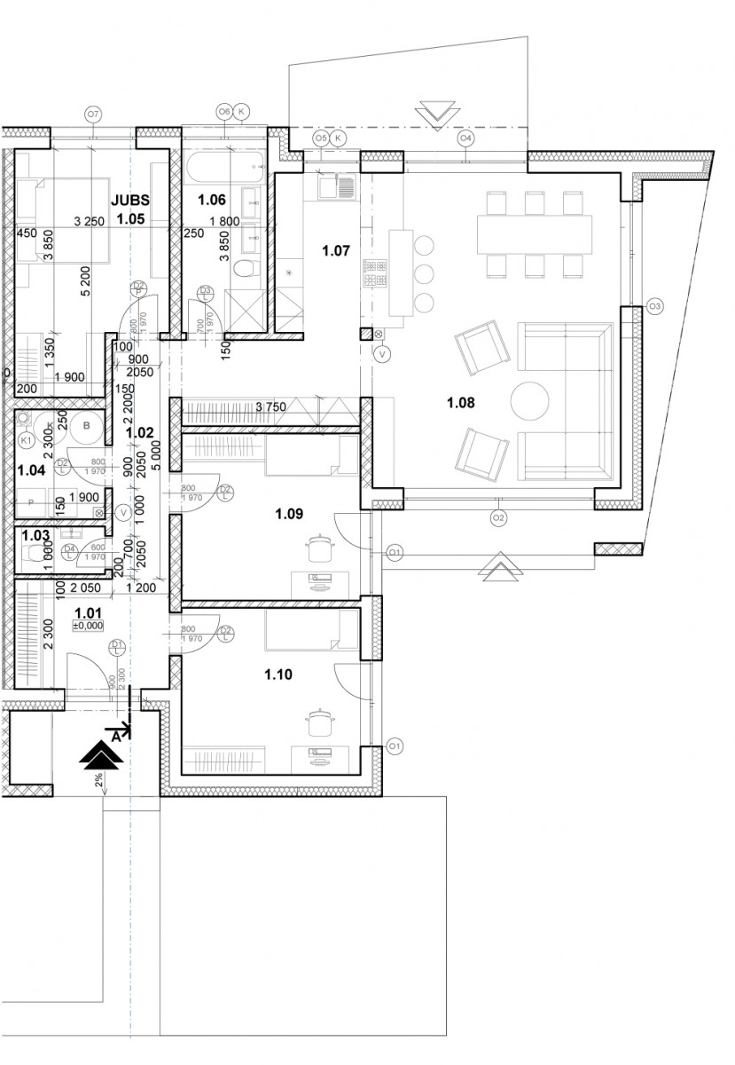
RD4
172.59 m²
celková plocha
479.54 m²
celková plocha pozemku
13.05 m²
1.02 chodba
4.37 m²
1.04 technická miestnosť
7.47 m²
1.01 zádverie
6.93 m²
1.06 kúpeľňa
1.9 m²
1.03 wc
13.12 m²
1.09 detská izba 1
13.12 m²
1.10 detská izba 2
23.92 m²
1.07 kuchyňa
17.42 m²
1.08 obývačka
15.08 m²
1.05 spálňa
rezervované
Stiahnuť pôdorysy v PDF

Kontakt
